• 150 m2 totali (appartamento + accessori)
  • 4 camere
  • 1 Soggiorno/Cucina
  • 1 Altri locali
  • 2 bagni

Descrizione

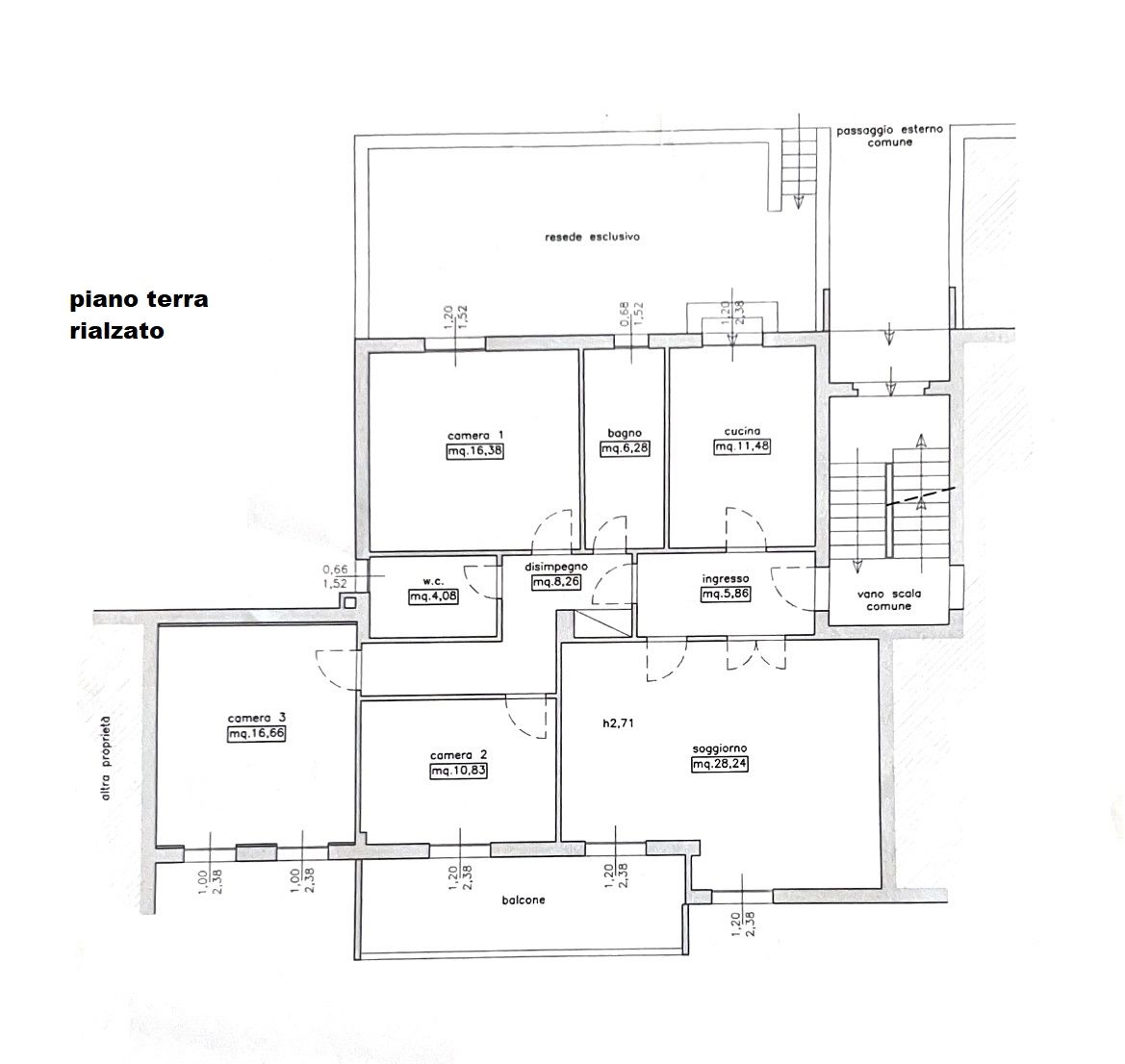
Soviclle (SI) frazione di San Rocco a Pilli -  vendesi luminoso appartamento di mq. 121 posto al piano terra rialzato composto da:
 ingresso - ampio soggiorno con accesso ad una terrazza di mq 12 -  cucina con accesso ad una resede di mq, 33 - due camere matrimoniali -  una camera singola - due bagni finestrati. 


L'immobile è in buone condizioni. 


Completa la proprietà una cantina di mq. 7 ed un garage di mq. 14.


TERMOAUTONOMO + ARIA CONDIZIONATA 


CLASSE ENERGETICA G


Prezzo: € 230.000


rif: s.roccoBALmezz1

Caratteristiche

  • Contratto: VENDITA
  • Richiesta €: 230.000,00
  • Locali: 5
  • Superficie mq 2: 150
  • Metri quadri appartamento: 121
  • Metri quadri terrazzo/i: 15
  • Metri quadri giardino: 33
  • Metri quadri accessori: 21
  • Piano: terra
  • Stato immobile: Buono
  • Bagni: 2
  • Terrazzo: 1
  • Mq giardino: 33
  • Classe Energetica: G
  • Situazione immobile: Libero