• 150 m2 totali (appartamento + accessori)
  • 3 camere
  • 1 Soggiorno/Cucina
  • 1 Altri locali
  • 2 bagni

Descrizione

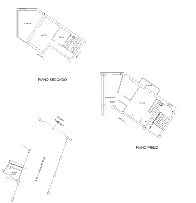
Sovicille (SI  Vendesi appartamento di recente costruzione su due livelli - collegati tra loro con scala interna - di circa 110 m² inserito in un piccolo contesto condominiale, in fabbricati di due piani senza ascensore. 


L'immobile è in perfette condizioni, dispone di infissi termici con ottime rifiniture ed è così composto:

 
primo livello: sala a vista con angolo cottura e affaccio su terrazza - disimpegno - due camere - bagno 
secondo livello: disimpegno - bagno - camera da letto matrimoniale con affaccio su terrazza panoramica di circa 20 m²  


completano la proprietà una cantina e un garage di circa 18 m² 


Riscaldamento autonomo


CLASSE ENERGETICA IN CORSO DI DEFINIZIONE 


Rif: MatSov2025


richiesta: € 185.000

Caratteristiche

  • Contratto: VENDITA
  • Richiesta €: 185.000,00
  • Locali: 4
  • Superficie mq 2: 150
  • Metri quadri appartamento: 110
  • Metri quadri terrazzo/i: 30
  • Metri quadri accessori: 18
  • Cantina: Si
  • Piano: su due livelli
  • Stato immobile: Buono
  • Bagni: 2
  • Terrazzi: 2
  • Aria Condizionata: Si
  • Mq Box/Garage: 18
  • Classe Energetica: IN CORSO DI ASSEGNAZIONE
  • Spese condominiali: 20,00
  • Situazione immobile: Libero