• 185 m2 totali (appartamento + accessori)
  • 2 camere
  • 1 Soggiorno/Cucina
  • 2 Altri locali
  • 1 bagni

Descrizione

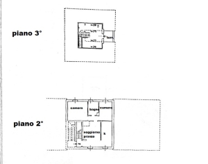
SOVICILLE (SI) - Vendesi luminoso e panoramico appartamento in ottime condizioni di mq. 103 facente parte di un  fabbricato costruito nel 2000 


L'immobile è posto al secondo piano, tipologia DUPLEX (su due livelli) ed è così composto: 


ampio soggiorno - cucina abitabile - camera matrimoniale - cameretta e bagno finestrato
Tramite una scala interna si accede ad una mansarda di mq. 45 con un unico vano da personalizzare in base alle proprie esigenze, l'ambiente è corredato di una terrazza a tasca di mq. 5. 


Completa la proprietà un garage di mq. 41


 TERMOAUTONOMO


CLASSE ENERGETICA G 


Prezzo: € 250.000


rif: SovsovicilleBALmezz

Caratteristiche

  • Contratto: VENDITA
  • Richiesta €: 250.000,00
  • Locali: 4
  • Superficie mq 2: 185
  • Metri quadri appartamento: 103
  • Metri quadri terrazzo/i: 5
  • Metri quadri accessori: 86
  • Piano: su due livelli
  • Stato immobile: Ristrutturato
  • Bagni: 1
  • Terrazzo: 1
  • Mq Box/Garage: 41
  • Classe Energetica: G
  • Situazione immobile: Libero