• 125 m2 totali (appartamento + accessori)
  • 4 camere
  • 1 Soggiorno/Cucina
  • 3 Altri locali
  • 3 bagni

Descrizione

Sovicille (SI) frazione di Rosia - Rosia alta - 
vendesi terratetto panoramico di circa 110 mq. commerciali con ingresso indipendente da resede pavimentato di proprietà esclusiva. 
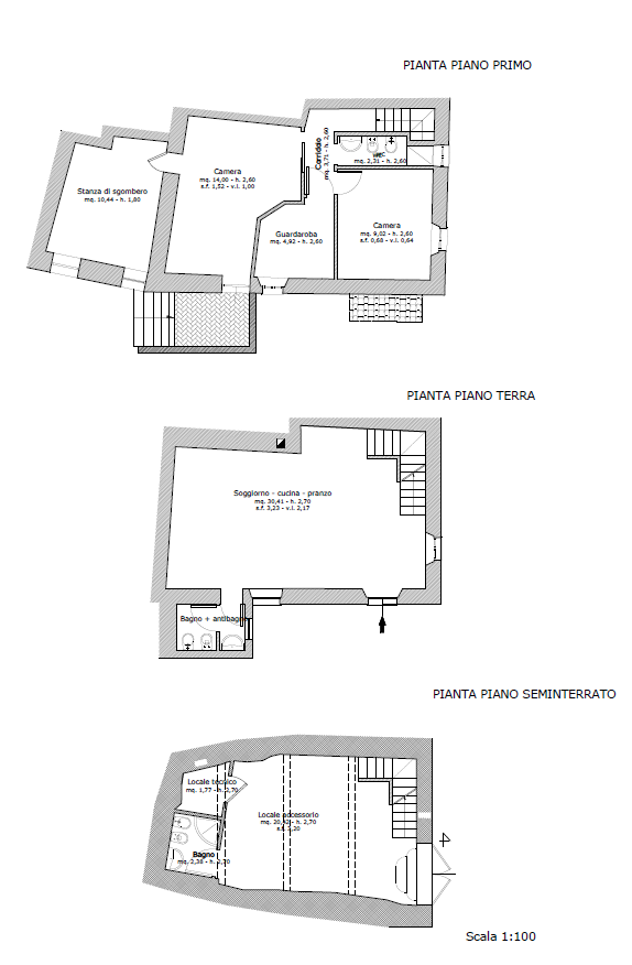
L'immobile si sviluppa su tre livelli così disposti:


 Piano Terra:  grande soggiorno open space con angolo cottura e bagno finestrato - attraverso una scala, si accede al piano sottostante dove è presente un ampio locale accessorio molto luminoso di circa 21 mq. provvisto di porta finestra che affaccia sull'esterno, bagno e lavanderia. + una cantina


 Piano primo.  una camera matrimoniale con terrazzino panoramico - una camera singola - studio - bagno con finestra -  stanza pluriuso dalla quale si accede al piccolo giardino.


L'immobile si presenta in ottimo stato manutentivo poiché finemente ristrutturato di recente.
Possibilità di parcheggio nel resede pavimentato antistante l'ingresso.


Prezzo: € 230.000


TERMOAUTONOMO


CLASSE ENERGETICA E


rif: rosiaaltaIDEmezz

Caratteristiche

  • Contratto: VENDITA
  • Richiesta €: 230.000,00
  • Locali: 7
  • Superficie mq 2: 125
  • Metri quadri appartamento: 105
  • Metri quadri giardino: 35
  • Metri quadri accessori: 40
  • Cantina: Si
  • Piano: su due livelli
  • Stato immobile: Ristrutturato
  • Bagni: 3
  • Mq giardino: 35
  • Classe Energetica: E
  • Situazione immobile: Libero